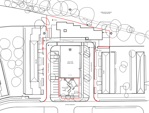
Stag House, Stroud Crescent, Putney Vale, SW15 3EJ
Scheme name and address
Stag House, Stroud Crescent, Putney Vale, SW15 3EJ.
New addresses: Flats 1-22 Stag House, 32a Stroud Crescent, SW15 3EJ.
Description
Demolition of community centre and erection of three to four storey building to provide 21 flats including warden flat and communal living spaces; reduction in size of adjacent multi-use games area to create circulation and access space, balconies to all elevations, associated cycle and refuse storage and landscaping. Retention of 27 car parking spaces alongside the games area.
Site details
| Ward | Roehampton and Putney Heath |
|---|---|
| Status | Under construction - contractor Wates |
| Number of units | 22 |
| Tenure mix | 11 x social rented flats 10 x flats for resident with a physical and/or learning disability 1 x warden flat |
| Unit mix | Social rented: 7 x 1-bed flats 4 x 2-bed flats Supported housing: 11 x 1-bed flats |
| Planning reference | 2016/5949 |
| Start on site | August 2018 |
| Completed | June 2020 |
Proposed site plan

Images


